Spencer Street, Rossendale Offers over £190,000 (Freehold) - Ref: 2751
2 1 1
Overview
The Autumn sun was shining down when we came to do the photos at Spencer Street and there was just one thing I had to show the photographer before we got started. I said "Before we do anything, let me show you this!"... and went straight outside to the garden. After a few silent seconds stood at the waist height stone wall, the photographer sighed "Oh yes, I can see myself here every morning!", and that's exact response I knew she would have. How could she not, it's beautiful, that's how I've always felt with this row of terraces. The lucky residents on Spencer Street have this special and unique outlook at the back you don't get anywhere else in Rossendale.

To match this perfect location, is this perfect little mid terrace where every single detail has been carefully selected and cared for. From the floor to the light switches, the radiators to the pipes. It has everything for a few different types of buyers, if are looking to downsize and spend time relaxing than grafting, a small family who need a home to rely on or a couple who want to do more travelling than home projects, this is a very well kept and wonderful home to invest in because this property isn't just a pretty face; there has been some fundamental upgrades behind the scenes to make sure this property can run efficiently, safely and be a well maintained home for many years to come. *Please see list below*

Looking for a lifestyle, not just a home? You are spoilt when it comes to an active lifestyle in Crawshawbooth and the surrounding villages. There are plenty of gyms and country walks, one being literally from your doorstep, from behind the cottages onto Goodshawfold Lane and to the moors beyond. There are many cycle trails in Rossendale and plenty of children's parks, with many other beautiful neighbouring towns. There is also a huge art community. You couldn't be luckier with the access you have to the beautiful countryside and more.

With the highly regarded Crawshawbooth Primary School (feeder school to BRGS) 
less than a 5 minute walk away, you are also near to numerous highly recommended Nurseries and High Schools in Rawtenstall.

We like to shout about the brilliant bus route that we have here in Rossendale, the Manchester Witchway X43 Bus that is just £6 return and runs straight from Burnley through Crawshawbooth, Rawtenstall, Prestwich and straight to Manchester. However, if it's car is your preferred travel then the house is less than a 10 minute drive to motorway links and supermarkets and an abundance of boutiques, restaurants, bars, markets and more.

With countryside, views, a community, amenities, schools, history... This property ticks so many boxes and could become your home so please, don't wait around and book your personal viewing appointment with me for the first weekend in October and secure this home to hopefully be in for Christmas!


Upgrades:
ROOF REPLACED IN APRIL 2020.
WHOLE HOUSE MVHR HEAT RECOVERY VENTILATION SYSTEM.
AUTOMATIC CELLAR VENTILATION SYSTEM.
ELECTRIC VEHICLE CHARGING POINT, UNDER WARRANTY AND WITHIN ITS CERTIFICATION PERIOD.
NEW CONSUMER UNIT IN 2021, EICR DONE 05/09/25.
BOILER SERVICED 01/08/25.
MULTIFUEL STOVE HAS HETAS CERTIFICATE.
HIGH SECURITY LOCKS FITTED TO FRONT AND REAR DOORS USING SAME KEY FOR BOTH
REAR DOOR, KITCHEN WINDOW AND FRONT BEDROOM WINDOW REPLACED WITHIN THE LAST 4 YEARS - LAMINATED SECURITY GLASS FITTED TO KITCHEN WINDOW.
TWO GARDEN SHEDS, THE LARGER ONE IS LINED AND HAS LIGHT AND POWER.
Property Ref : 2751
Video
Photographs
Floorplans
Print this Property
Property Details
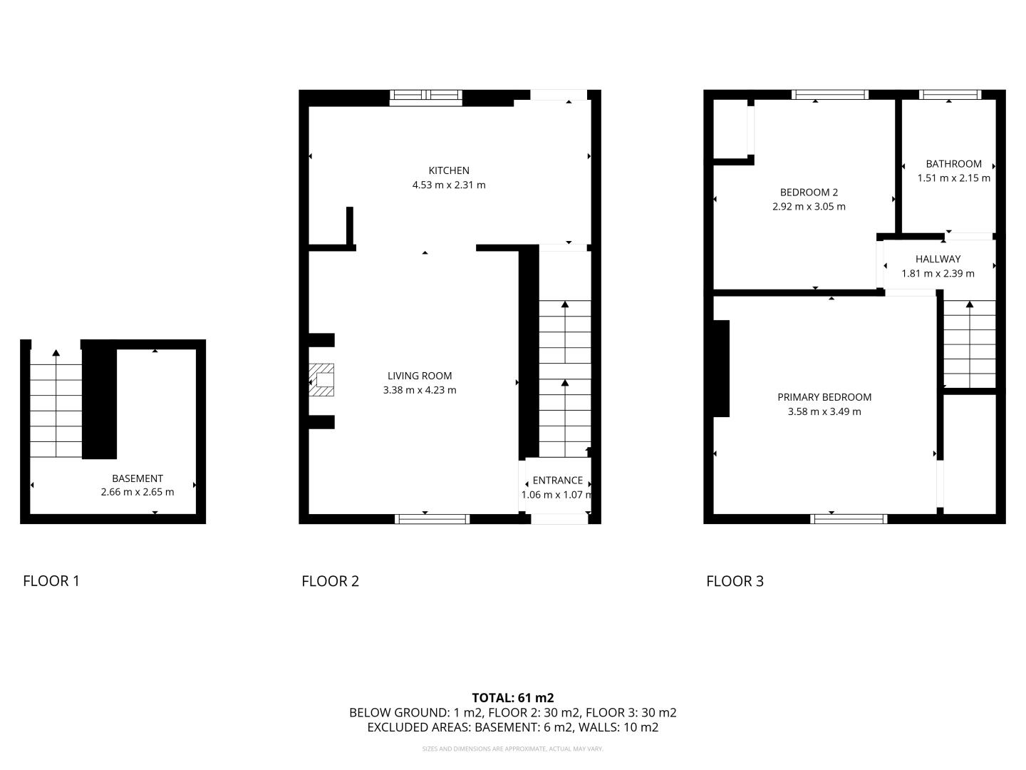
Basement Living room Kitchen Family bathroom Bedroom One Bedroom Two
Additonal Information
Tenure: Freehold
EPC Rating: ?
Council Tax Band: A
Council Tax Rate (Standard): £1,616
Max. Broadband Speed (estimated): 2000 Mbps
Mains Gas: No
Mains Water: Yes
Mains Drainage: Yes
Mains Electricity: Yes
Property Reference: 2751
GDPR: By submitting an enquiry, you consent to your information being shared with the seller of this property or the agent representing the property. Your details will only be used to respond to your enquiry and arrange viewings or provide further information.
Property Questionnaire
Tenure
All information in this property questionnaire has been provided by the vendor.
Freehold
Leasehold
Share of Freehold
Estate Management Charge (where applicable)
Lease Details:
Ground Rent
Service charge
Start Date
Duration
years
Is the Freehold owned by the Resident Association?
No
Yes
Are you aware of any impending increases?
No
Yes
Previous year's service charge?
Is the property shared ownership?
No
Yes
Who owns the freehold?
What percentage share of the property are you selling?
%
What rent do you pay for the balance?
per annum
Services
Map View
Street View
Local Info
None
All
Dentist
Doctor
Hospital
Train
Bus
Cemetery
Cinema
Gym
Bar
Restaurant
Supermarket
Energy Performance Certificate
The full EPC chart is available either by contacting the office number listed below, or by downloading the Property Brochure
Energy Efficency Rating
CURRENT
?
(0)
POTENTIAL
?
(0)
Energy Efficency Rating
Current
Potential
(92+)
A
(81 to 91)
B
(69 to 80)
C
(55 to 68)
D
(39 to 54)
E
(21 to 38)
F
(1 to 20)
G
0
0
England & Wales
EU Directive 2002/91/EC
The energy efficiency rating is a measure of the overall efficiency of a home. The higher the rating the more energy efficient the home is and the lower the fuel bills will be.
Professional Contact Request Close

If you are a company representative or professional wishing to contact the agent of this property in relation on an on-going sale, simply complete the form below. Please note that all communication is monitored and logged. No unsolicited contact is permitted.

  Request Contact
Cancel
Logging your message..
Your message and contact details have been forwarded to the Seller.
  Continue
Oops! Please try again.
  Try Again
Share this Property! Close
Spencer Street, Rossendale Share with all of your friends & followers using the social media options above, or with a single friend using the form below
  Share
Cancel
By clicking send you agree to our privacy policy?
Sending your friend an email..
Success! Please ask your friend to check their email.
  Continue
Oops! Please try again, or contact us and we will send your friend a printed brochure.
  Try Again
Get in Touch! Close

Have a question? Send the Seller a message and let you know when they reply

  Send
Cancel
Sending your message..
We will let you know when the Seller replies
  Continue
Oops! Please try again.
  Try Again
Book a Viewing Cancel
FORM HERE
Thursday 21st January
7:30pm > 8:00pm
Requesting your viewing..
Your appointment has been requested, but requires confirmation by the property representitive.
Thursday 21st January
7:30pm > 8:00pm
Your appointment has been confirmed.
Thursday 21st January
7:30pm > 8:00pm
We couldn't secure that appointment. Please try selecting an alternative date / time.
Continue
Back
Confirm
Continue
Back
Mortgage Calculator Close